物件詳細情報(プレミール中根C棟2号)
村営住宅(子育て世代型の地域優良賃貸住宅)のプレミール中根C棟2号のページです。
物件内容
| 名称及び住戸番号 | プレミール中根C棟2号 |
|---|---|
| 所在地 | 清川村煤ヶ谷2018番地の1 |
| 構造 | 軽量鉄骨造2階建て |
| 住居形式 | メゾネットタイプ |
| 間取り | 2LDK |
| 延床面積 | 78.08平方メートル/戸 |
| 入居者負担額 |
月額50,000円から65,000円 ※入居後、毎年度の収入報告で世帯の月額所得額が38万7千円を超える場合は、入居者負担額は7万円になります。 |
| 共益費 | 月額3,500円 |
| 敷金 | 140,000円 |
※実際とは異なる場合があります。また、予告なく変更する場合があります。
外観

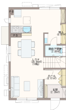
間取り
1号
1階間取り
2階間取り
内装
玄関


1階
LDK
キッチン
2階
南部屋に室内物干し金物付き
畳コーナー
北部屋
浴室
バスユニット
浴室暖房乾燥機付24時間換気扇
トイレ
温水洗浄暖房便座付便器
洗面所
洗面所
断熱性について

夏は冷房効率がよい爽やかな住環境を、冬は暖かさを逃さない住環境を提供します。
位置情報
この記事に関するお問い合わせ先
清川村村づくり観光課
〒243-0195 神奈川県愛甲郡清川村煤ヶ谷2216
清川村役場1階
電話番号046-288-3864 ファックス:046-288-1909






更新日:2026年03月06日