物件詳細情報(舟沢村営住宅3号棟)
舟沢村営住宅2号棟のページです。
物件内容
名称及び | 舟沢村営住宅3号棟 |
---|---|
所在地 | 清川村煤ヶ谷19番地内 |
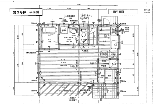
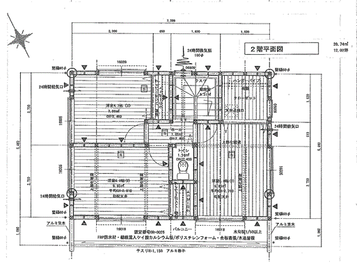
構造 | 木造2階建て |
住居形式 | 一軒家 |
間取り | 3LDK |
延床面積 | 79.48平方メートル/戸 |
入居者負担額 |
月額50,000円から70,000円 ※入居後、毎年度の収入報告で世帯の月額所得額が38万7千円を超える場合、入居者負担額は7万円になります。 |
敷金 | 140,000円 |
その他 |
駐車場1台 犬・猫等の動物の飼育はできません |
外観イメージ

間取り
2号

1階間取り

2階間取り
内装
玄関

1階

リビング

台所

洗面所

浴室

トイレ
2階

洋室1

洋室1クローゼット

洋室2

洋室2クローゼット

洋室3

洋室3クローゼット

トイレ
位置情報
この記事に関するお問い合わせ先
清川村村づくり観光課
〒243-0195 神奈川県愛甲郡清川村煤ヶ谷2216
清川村役場1階
電話番号046-288-3864 ファックス:046-288-1909
更新日:2025年09月24日